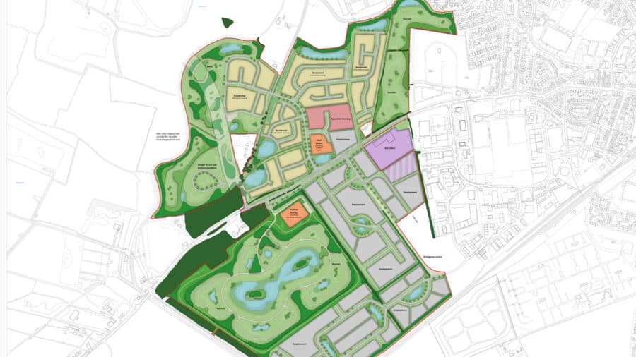
Air quality and odour consultancy for a proposed 1,300-home garden village in north Lowestoft. Create undertook three months of olfactometric surveying and odour modelling to assess the impact of a nearby Water Recycling Centre on the development.
A 30MW solar farm in Hampshire, capable of powering around 8,000 homes. Create provided transport consultancy for a logistically challenging rural site, successfully securing planning approval in February 2026.
Kidbrooke Village is one of London's most significant new housing-led developments. Create provided specialist Geo-environmental, Water & Flood Risk consultancy, helping to navigate the Environmental Impact Assessment (EIA) process for Phase Five.
Create provided Water & Flood Risk consultancy to support the demolition and replacement of Clifton railway bridge over the M6 on the West Coast Main Line, helping Skanska UK secure Environment Agency (EA) permits and deliver works safely on programme.
A landmark logistics headquarters for PFE Express in Witham, Essex, achieving BREEAM 'Very Good' in 2025. Create delivered multidisciplinary services throughout the planning, design, construction and post-completion stages.
An £8m strategic development delivering 1,000+ new homes on the edge of Bicester. Create provided multidisciplinary services over five years, resolving critical inherited drainage flaws that unlocked Phase Two for Countryside Properties.
A 136-hectare urban extension planned to deliver 1,000 homes west of Skegness, formally adopted via Local Development Order in 2025. Create provided five years of flood risk, hydraulic modelling and drainage engineering to unlock the site for Croftmarsh.
We supported the planning of both the original Stoll Square residential scheme and the revised Purpose-Built Student Accommodation (PBSA) at 317 Cricklewood Broadway with multidisciplinary technical services, spanning over five years of regeneration efforts.
Part of a wider Breckland renaturalisation initiative, this project introduced Natural Flood Management (NFM) interventions across nine sites along the Thet and Little Ouse rivers to restore chalk river ecosystems and reduce downstream flood risk.
A new purpose-built community hospice in Gorleston-on-Sea, currently at RIBA Stage 4 - Technical Design. Having secured planning in 2025, Create are continuing to deliver multidisciplinary services as part of the design team.
An award-winning custom self-build scheme of 12 dwellings around a village pond in Ingoldisthorpe, North Norfolk. Create provided multidisciplinary services from planning through to completion for self-build specialists, LivedIn.
A state-of-the-art player recovery facility at Norwich City’s Lotus Training Centre, completed in 2024. Create delivered MEP Building Services from planning through construction, supporting a high-specification pool and aqua therapy complex.
A landmark £100m headquarters for Brompton Bicycle in Ashford, Kent, designed for carbon neutrality. Create provided specialist Flood Risk consultancy, developing an innovative strategy to enable development within Flood Zone 3.
Phase One of the Mile Cross Depot Regeneration project in Norwich will deliver 67 socially rented homes on the former City Depot site. Create provided multidisciplinary services to support planning, with approval granted in November 2024.
A sustainable gas-free development comprising 70 new homes on the site of a former Murketts car dealership and unused workshop. Create provided multidisciplinary services to support the planning application, which received approval in September 2024.
Phase 3 of the Newbury Farm is set to deliver 150 mixed-tenure houses and apartments, circa 300 sqm of community and commercial spaces. We have provided multidisciplinary services and specialist advice since 2023.
Saxon Fields by Crocus Homes is a 50-home development in the village of Woodton, South Norfolk. Create provided multidisciplinary services to support the planning application, which received approval in August 2024.
Soham Eastern Gateway comprises 540 homes, a medical centre and a purpose-built neighbourhood centre featuring a pre-school nursery. We were appointed in 2019 to cover Sustainability and Energy.
An affordable 29-home development to land north of Station Road in Haughley near Stowmarket. We have provided multidisciplinary services in support of a planning application.
Our Transport & Highways team have been supporting Cambridge City Council with the first scheme of their Small Sites Programme, Paget Road Garages. The development comprises four semi-detached, three-bedroom homes, parking and landscaping.
We were appointed to the role of Air Quality Consultant on this major regeneration project, which will see Harriott, Apsley and Pattison Houses redeveloped to provide 407 dwellings and a standalone community building.
In January 2023 the northbound carriageway of the A21 near Hastings was closed due to a landslide. We were appointed by MJ Church Group to provide Geo-environmental services.
Over the academic calendar of 2023-24, we completed various technical requirements to support CIF projects in schools across the UK.
A 67,000 sq ft, seven-storey building comprising of 150 apartments, shared facilities, an external terrace and socialising area. Our multidisciplinary team have been providing a variety of technical advice and services to support a planning application.
Appointed to the role of Air Quality Consultant in 2023, we have been providing technical advice and services to support a proposed 31-home residential development in Palmers Green, Enfield.
In 2023 our Water & Flood Risk team were appointed to undertake a flood modelling study of the Kym Catchment in Bedfordshire and develop a feasible, low cost and Natural Flood Management orientated flood relief scheme.
We provided on-site noise and vibration monitoring, specialist mitigation advice, and data calculations to support VolkerFitzpatrick with their road planing project in an historic Norfolk village. Winner of a 2023 ANC Award for Environmental Noise.
Our Sustainability team have been supporting the proposed redevelopment of Hornsey Police Station since 2022. Koukan Developments’ proposals will see the police station refurbished and extended to provide six terraced houses and four flats.
Since 2017 we have been working with East Lindsey District Council to update their Strategic Flood Risk Assessment as part of an ongoing Local Plan review.
A landmark mixed-tenure development in the heart of Cambridge, delivering 236 homes and community facilities. Create provided multidisciplinary services across the full project lifecycle for Cambridge Investment Partnership.
Phase 3 of the Colville Road scheme in Cambridge will see 48 homes replace 16 aging homes. In 2020 we were appointed to provide multidisciplinary planning support.
Timber Works, delivered for Cambridge Investment Partnership, comprises 118 new council homes, 177 market-sale homes, and a range of community amenities. We provided multidisciplinary consultancy services between 2018 and 2025.
A Cambridge Investment Partnership scheme, Campkin Road provides 75 new, highly sustainable homes and apartments, green spaces and a community centre. Create provided multidisciplinary services across the full project lifecycle.
Supporting Ørsted since 2018, we’ve delivered key DCO, planning, construction and technical compliance services for Hornsea 3 – a major offshore wind development and critical component of the UK’s 2030 energy strategy.
We have been supporting Turley with a planning application for the proposed expansion of Girton College in Cambridge. The proposals include a new accommodation, office and social space, an auditorium, sports allocation, new vehicular accesses and car parking.
7 Thames Road for Inland Homes will comprise 131 residential units, landscaping and public realm improvements, play spaces, car parking and other associated and ancillary works. We’ve been supporting the development since 2020.
Part of the Thames Road Masterplan, 3 Gallions Close will provide 233 dwellings, a local convenience commercial unit, landscaping and public realm improvements. We were appointed in 2019 to provide multidisciplinary services to support a planning application.
In 2016 we were appointed to provide multidisciplinary services to support a planning application for Dimes Place in central London. The brownfield site will be reinvented to provide high quality and unique office space within Hammersmith.
We were appointed in 2016 to provide multidisciplinary services to support a planning application for this proposed refurbishment of a derelict listed property into a mixed-use development that retains the original maritime heritage.
Appointed in 2020, we have provided multidisciplinary services for this major mixed-use scheme in north west London, which will provide 252 homes, a retail outlet and expand the public realm with a mix of quality internal and external amenity.
In 2015 L&Q appointed us to provide expert infrastructure advice and multidisciplinary services to support the promotion of a proposed new settlement of 17,000 dwellings at Marks Tey in Essex.
Since 2014 we have been working on a proposed new business park that will offer new build industrial, warehouse and office buildings in premier location, south of Norwich city centre. The proposed site is in close proximity to the A47 southern bypass.
We provided structural and civil engineering services on a luxury collection of six, award-winning, individually designed apartments in Elstree, North London.
Working in partnership with Highways England, Dawson WAM working on behalf of Kier appointed us in 2018 to help manage and mitigate noise and vibration on their major programme to convert the M6 around Staffordshire into a smart motorway.
Acoustics and Air Quality consultancy supporting a major 1,525 home redevelopment of a former MoD site in Hounslow. Create’s work helped secure a unanimous resolution to grant planning permission in 2022 for Inland Homes.
We have been working with Mayfield Market Towns Limited since 2012 providing a range of multidisciplinary services to support the proposals for a new town as an option for development through the Horsham Local Plan.
Between 2020 and 2022 we provided multidisciplinary services and technical advice to support the planning and design of a new depot for Ben Burgess, East Anglia's premier agricultural machinery, equipment and supplies provider.
Over the academic calendar of 2021-22, we completed various technical requirements to support CIF projects in schools across the UK.
We provided structural engineering services on this exquisitely crafted private home, featuring traditional flint surfaces and other local materials, nestled between two heritage sites in an area of natural beauty in North Norfolk.
The Panther House Redevelopment by development manager Dukelease and architects AHMM reinvents a former industrial area, creating a mix of apartments, workplace and retail spaces. We were appointed to the role of Air Quality Consultant in 2015.
The Haggerston Baths Redevelopment will see a Grade-II listed Edwardian swimming pool transformed into new office and flexible co-working spaces, as well as public amenities. We were the BREEAM Consultant appointed to support a planning application.
In 2019 we were appointed to provide structural engineering services for a new £4.14 million state-of-the-art cancer care and support centre in Cromer, Norfolk.
Over the academic calendar of 2020-21, we completed various technical requirements to support CIF projects in schools across the UK.
Our MEP Building Services team provided technical advice and services on this award-winning £5 million building that provides state-of-the-art laboratories and workspace.
In 2019 we were appointed by Westminster City Council to provide multidisciplinary services to support a proposed re-development at Ashbridge Street of an existing BT Repeater Station into a five-storey residential building with parking.