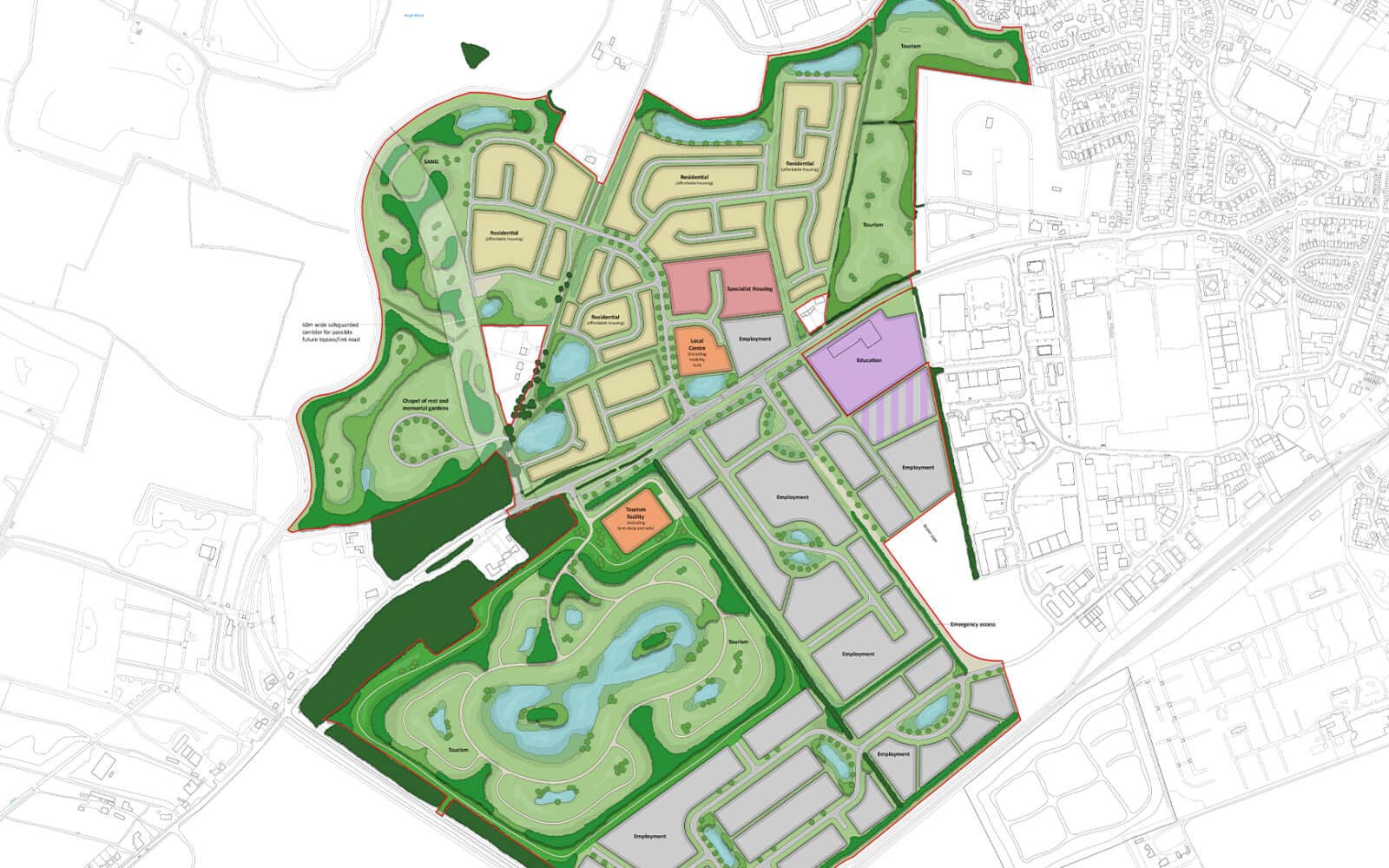
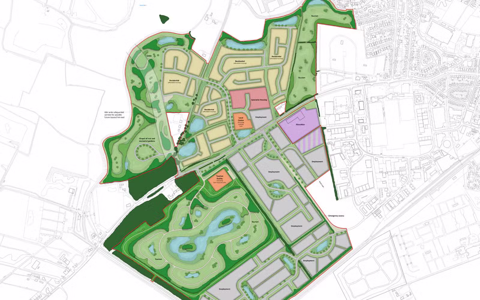
A detailed site plan map for Skegness Gateway, showing proposed residential, commercial, and green spaces, with roads, pathways, and labeled zones in various colors.

Skegness Gateway

Skegness, Lincolnshire

We supported the development of Skegness Gateway – a transformational urban extension of 136 hectares delivering homes, schools, and employment land – with specialist flood risk and water management services, formally adopted through an LDO in 2025.

Croftmarsh

PROJECT DESCRIPTION

Skegness Gateway is a transformational urban extension to the west of Skegness, covering approximately 136 hectares and planned to deliver around 1,000 new homes alongside schools, commercial and business space, and assisted living accommodation.

From 2020 to 2025, Create provided a range of specialist water management and flood risk services to help unlock this strategically important site, which was formally adopted through a Local Development Order by East Lindsey District Council in 2025.

The Gateway site lies within an area influenced by complex coastal flood dynamics associated with both breach and overtopping, requiring detailed modelling and careful design to ensure safe and sustainable development. Create was appointed by landowners Croftmarsh Ltd to provide water management and flood risk mitigation advice, tidal breach and overtopping modelling. The aim was to produce a robust and evidence-based assessment of the flood risk to the site and surrounding areas.

The resulting work informed a flood risk mitigation and resilience strategy that protected the most vulnerable parts of the site, defined safe evacuation routes, and established appropriate mitigation throughout.

Our involvement has been a long-term collaboration spanning several years, working closely with Croftmarsh, East Lindsey District Council, and the Environment Agency (EA). This partnership has enabled us to build a deep understanding of local conditions and develop innovative, site-specific approaches that contribute positively to coastal flood resilience.

A map showing proposed and existing road layouts, access points, and emergency vehicle routes for the Skegness Gateway development area, marked with color-coded lines and symbols.
A detailed map of the Skegness Gateway planned residential and commercial development area, with color-coded zones, roads, green spaces, and nearby existing neighborhoods.
Skegness Gateway engagement event in July 2022.
A map showing urban streets within the Skegness Gateway, featuring several blue-highlighted surface water attenuation zones marked inside a red boundary outline.
Sue Bowser and Neil Sanderson of Croftmarsh (Image: Croftmarsh)

WHAT WE DID:


PLANNING STAGE

  • Surface Water Drainage Strategy

Developed an integrated approach to manage surface water runoff, ensuring compliance with local and national policy.

  • Hydraulic Modelling (Tidal Breach and Overtopping)

Modelled multiple breach scenarios to understand how floodwaters would behave under extreme events, informing the masterplan and design levels

  • Flood Risk Assessment (FRA)

Produced a detailed FRA identifying mitigation requirements and appropriate land uses within flood zones.

  • Evacuation and Access Modelling

Identified safe access and egress routes during extreme tidal flood events.

  • Liaison with Environment Agency (EA) Internal Drainage Board (IDB) and Lead Local Flood Authority (LLFA)

Ensured full technical engagement and agreement on drainage and flood mitigation proposals, as well as the technical detail of the flood modelling.

  • Technical Evidence for Local Development Order (LDO)

Provided hydrological evidence and recommendations supporting the LDO process and long-term resilience planning.


DESIGN STAGE

  • Surface Water Management and Storage Optimisation

Designed sustainable surface water management features, including attenuation basins and flow control structures.

  • Infrastructure Integration

Supported the design of drainage infrastructure within the emerging masterplan.


CONSTRUCTION STAGE (TO BE CONFIRMED)


KEY ACHIEVEMENTS / BENEFITS

  • Assisted in unlocking much needed mixed use development in Skegness

Ensures long term sustainability and supports regeneration of the Skegness area.


CLIENT FEEDBACK

“Developing the Skegness Gateway project has been a great challenge, however with Create’s technical knowledge, determination, and skills, we have achieved our early objectives and aspirations. The experience of working alongside Create’s team has been nothing short of exceptional. I have no doubts that the services and attention they have provided us shall continue as we progress to the next stage. Their strategic and technical guidance has allowed us to review the area and clearly define a strategy to manage and mitigate flooding, ensuring we were able to present East Lindsey District Council with a truly viable scheme that we hope will bring a new lease of life to Skegness and help maintain its coastal economy for decades to come.”

Stuart Robinson, Project Director at Croftmarsh